RÉSIDENCE
GARDÉNIA 2
La résidence s’élève sur 12 étages, offrant une architecture contemporaine élégante et parfaitement intégrée dans son environnement urbain.
Elle comprend 90 logements de standing, pensés pour offrir confort, luminosité et optimisation des espaces.
Découvrir la vidéo de la résidence
Idéalement située au cœur de CHERAGA, la résidence GARDENIA 2 incarne une nouvelle vision de l’habitat haut standing, alliant emplacement stratégique, architecture moderne et qualité de vie exceptionnelle.
La résidence s’élève sur 12 étages, offrant une architecture contemporaine élégante et parfaitement intégrée dans son environnement urbain.
Elle comprend 90 logements de standing, pensés pour offrir confort, luminosité et optimisation des espaces.
DESCRIPTIF DE LA RÉSIDENCE:
La résidence s’élève sur 12 étages, offrant une architecture contemporaine élégante et parfaitement intégrée dans son environnement urbain.
Elle comprend 90 logements de standing, pensés pour offrir confort, luminosité et optimisation des espaces.
COMMODITÉS:
•Résidence entièrement clôturée et sécurisée.
•Gardiennage 24h/24.
•Contrôle d’accès strict.
•Architecture moderne et raffinée.
•Matériaux de qualité et finitions soignées.
•Espaces de vie fonctionnels et lumineux.
•Double ascenseur moderne.
•Deux niveaux de sous-sol dédiés au stationnement.
•Accès sécurisé et organisation optimisée.
•Aire de jeux sécurisée pour enfants.
•Espaces extérieurs aménagés.
•Cadre résidentiel calme et agréable.
LIVRAISON:
• Début des travaux:
JANVIER 2026.
• Date de livraison:
février 2029.
• Permis de construire:
.
•Fond de guarantie:
N°:.
LA RESIDENCE EN PHOTOS:
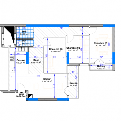
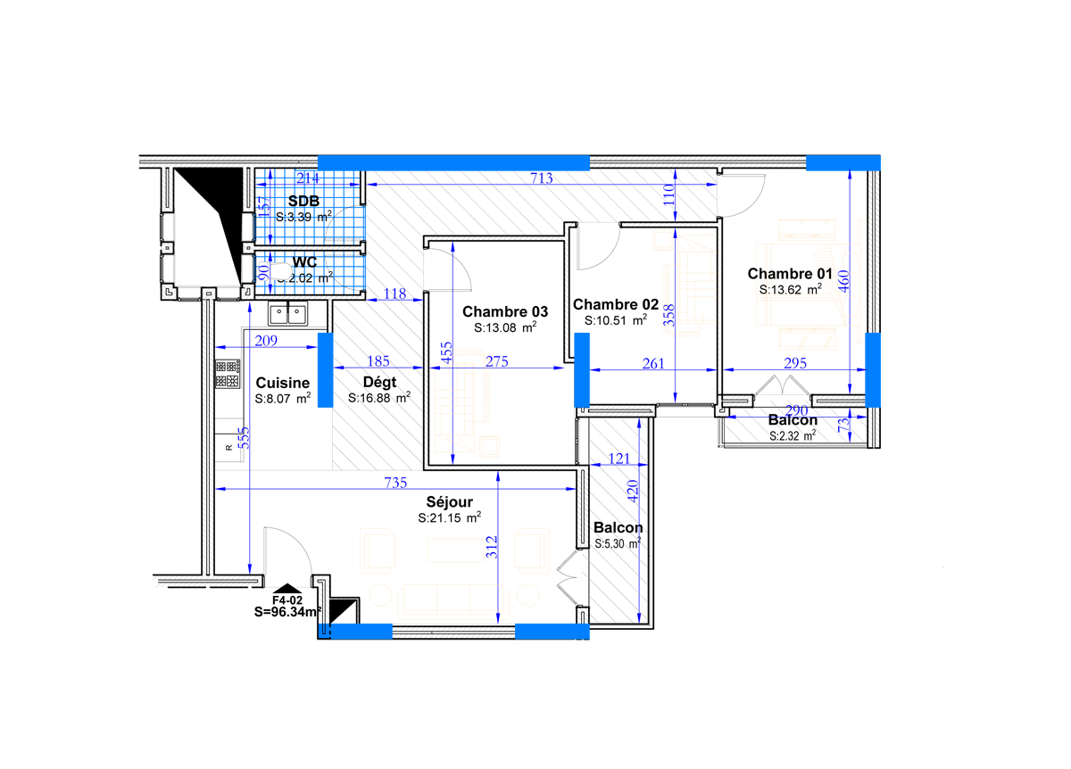
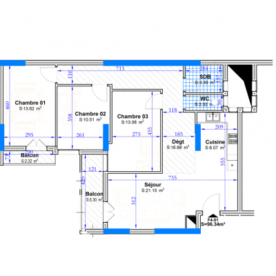
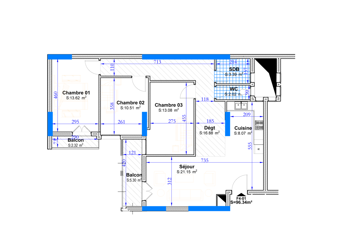
LES PLANS D’APPARTEMENTS :
LA VIDÉO DE LA RÉSIDENCE LES GARDÉNIAS:
INFORMATIONS :
AIT AISSA PROMOTION
ADRESSE CHERAGA:
cité allioua foudil N°1241
cheraga ALGER
Tél. : +213 770 77 24 34
info@promotion-api.com
cheraga ALGER
Tél. : +213 770 77 24 34
info@promotion-api.com
